FIGURA - архитектурная мастерская
Телефон: (495) 646-02-62 многоканальный
Заказать обратный звонок
Портфолио
 

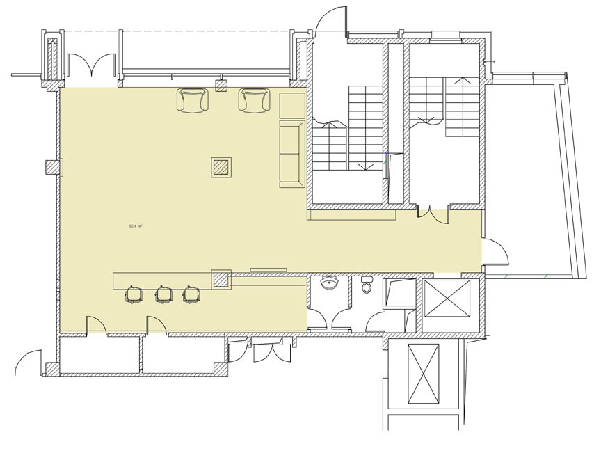
  Многофункциональный Комплекс "Баркли Плаза"

Пречистенская наб., 17-19

  Проект 2007 года

 
Автор проекта: Архитектурная мастерская "Фигура"
Общая площадь: 150м2
Архитектор: Чурсин Алексей
Многофункциональный Комплекс "Баркли Плаза"
Многофункциональный Комплекс "Баркли Плаза"
Многофункциональный Комплекс "Баркли Плаза"
Галерея проекта:
всего изображений: 6
далее

Закрытый тендер состоялся в январе 2007. Предложение мастерской -   архитектурный проект в авторском стиле с элементами хай-тек и минимализма. Отделочные материалы: стекло, натуральные дерево , камень. Фактурная покраска.

 
  ©2000-2026 ООО "Фигура"
121374, Москва, Можайское шоссе, дом 6 корпус 1
Тел.: (495) 646-02-62 многоканальный
Политика конфиденциальности
Instagram: @figura_architect


сайт разработан - Саша Савченко