FIGURA - архитектурная мастерская
Телефон: (495) 646-02-62 многоканальный
Заказать обратный звонок
Портфолио
 

  Жилой комплекс "Волынский"

г. Москва, ул. Староволынская, д.12

  Проект 2013 года

 
Автор проекта: Архитектурная мастерская "Фигура"
Общая площадь: 180м2
Архитектор: Сучков Роман
Жилой комплекс "Волынский"
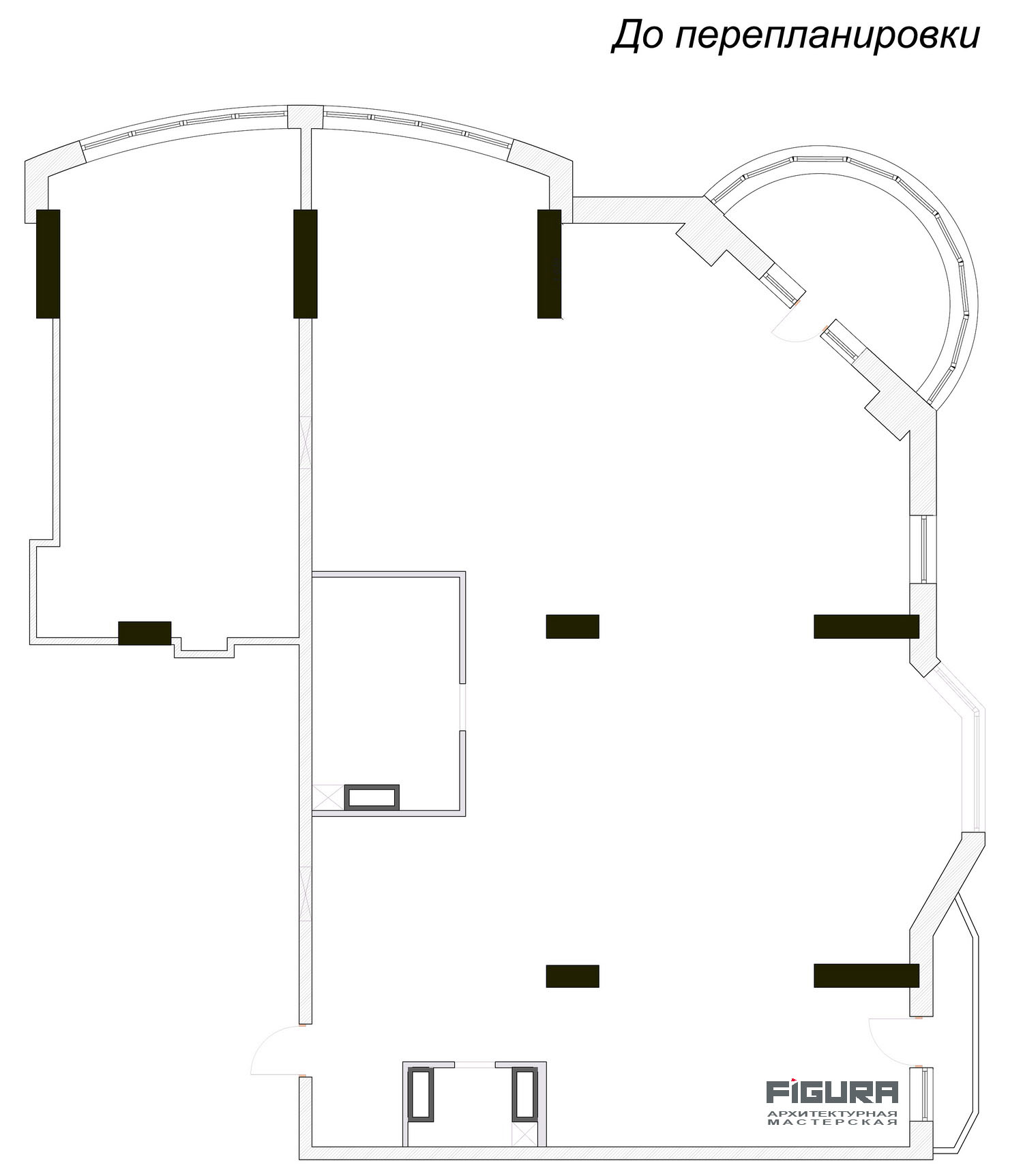
План до перепланировки
Жилой комплекс "Волынский"
План после перепланировки
Жилой комплекс "Волынский"
Жилой комплекс "Волынский"
Галерея проекта:
всего изображений: 35
Гостиная-кухня Гостиная-кухня Гостиная-кухня Гостиная-кухня далее


 
  ©2000-2026 ООО "Фигура"
121374, Москва, Можайское шоссе, дом 6 корпус 1
Тел.: (495) 646-02-62 многоканальный
Политика конфиденциальности
Instagram: @figura_architect


сайт разработан - Саша Савченко